Cushman & Wakefield | RED| Amaliegade 3, 5th floor, 1256 København K
Cushman & Wakefield | RED| Amaliegade 3, 5th floor, 1256 København K|VAT: 30 53 49 99|Phone: +45 33 13 13 99|Email: red@red.dk
Download

Knud Højgaaards Vej 7, ground floor,
2860 Søborg

Sustainable office in Gladsaxe business district

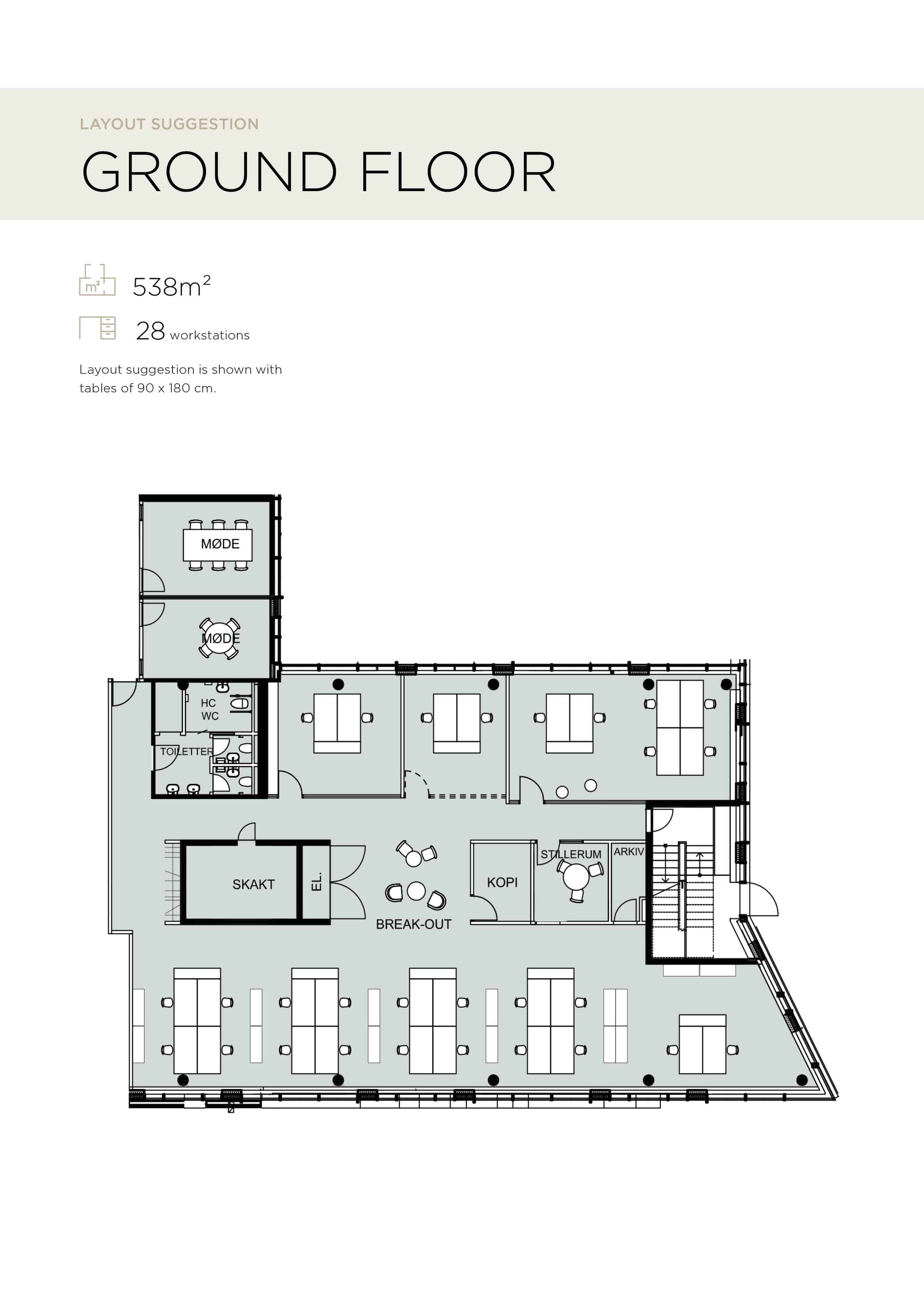
It is now possible to lease an office in No7 – a modern multi-tenant property from 2016, constructed to a high standard. A sublease of 538 m² is now available with the Danish construction company MT Højgaard.

The property offers attractive shared facilities that create optimal conditions for both employees and visitors, including a staffed reception, modern fitness centre, changing and shower facilities, and an inviting staff restaurant.

On the lower ground floor, there is a conference centre featuring three large meeting rooms and an auditorium with space for 150 people, available for rent as needed – ideal for both internal and external events.

The building was developed with a strong focus on sustainability and holds an A2020 energy rating as well as a DGNB Gold certification.

The property is located in the heart of Gladsaxe Business Park, an attractive commercial area where several major companies, including Beierholm and Novo Nordisk, are already established.

Hillerød Motorway and Ring 3 are just minutes away by car, and several bus lines stop within a few hundred meters. The Farum Supercycle Route runs along the motorway, offering a fast connection to Kongens Nytorv. In 2026, the area’s accessibility will further improve with the opening of the Capital Light Rail, featuring a station about 500 meters from the property.

There are also excellent parking facilities, with the option to lease up to 14 surface parking spaces.

For further information, please see the prospectus or contact us at +45 33 12 12 99.

Lease overview

Lease Area m² Annual gross rent DKK/m² Annual gross rent Monthly gross rent
Office ground floor 538 1,550 DKK 833,900 DKK 69,492

Lease overview

Lease Area m² Annual gross rent DKK/m² Annual gross rent Monthly gross rent
Office ground floor 538 1,550 DKK 833,900 DKK 69,492