Cushman & Wakefield | RED| Amaliegade 3, 5. sal, 1256 København K
Cushman & Wakefield | RED| Amaliegade 3, 5. sal, 1256 København K|CVR-nr.: 30 53 49 99|Telefon: +45 33 13 13 99|E-mail: red@red.dk
Download

Nørre Voldgade 90-92,
1358 København K

Nyistandsatte kontorer med fælles kantine

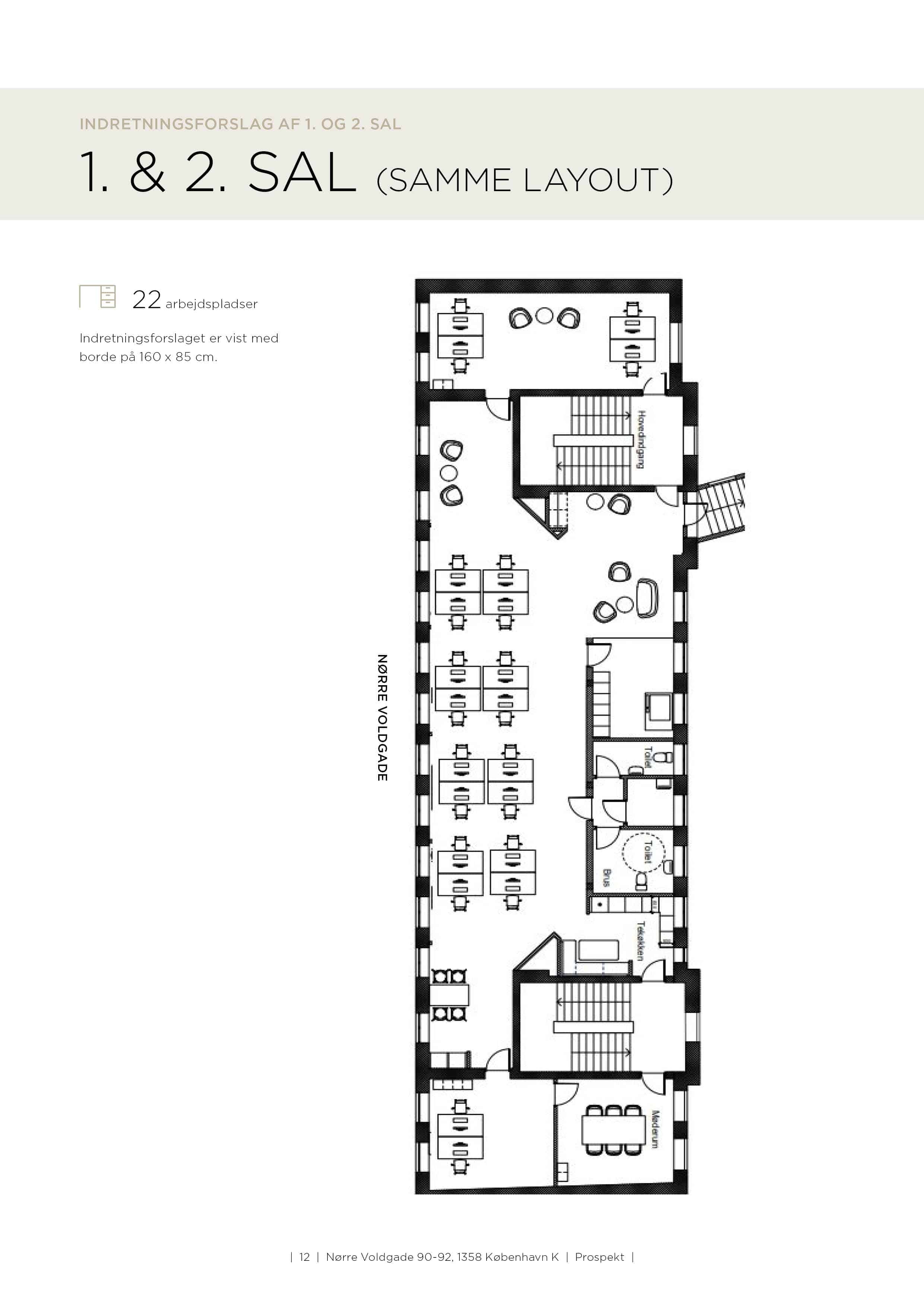
På Nørre Voldgade 90-92, lige ved Nørreport St., udbydes nu ledige kontorer på i alt 803 m² fordelt på to etager. 1. sal udgør 399 m², mens 2. sal udgør 404 m². Der er mulighed for at leje etagerne for sig eller som ét samlet lejemål.

Begge etager har en imponerende loftshøjde og er indrettet med flere, aflukkede kontorer i glas. Her tilbydes et særdeles behageligt arbejdsmiljø med akustiklofter, flotte tæpper og ventilation.

Fra etagerne er der en suveræn udsigt over pulserende Nørreport. Beliggenheden bliver således ikke mere central.

Lejemålene har adgang til aflåst cykelkælder, fælles mødelokale, bade- og omklædningsfaciliteter samt en lækker, fælles kantine der servicerer husets lejere.

Det bemærkes, at lejemålene ved genudlejning kan lejes  uden moms.

Beliggenheden i det absolutte centrum af København fås ikke meget bedre. Ejendommen er beliggende blot 50 meter fra Nørreport St., og her får I således metro, S-tog, regionaltog og adskillige buslinjer lige til døren. Parkering er muligt blot 200 meter fra ejendommen ved Israels­ Plads, hvor der kan lejes parkeringspladser på fast basis eller timebasis.

For yderligere information, se prospekt eller kontakt os på telefon 33 13 13 99.

Lejemålsoversigt

Lejemål Areal m² Årlig leje kr./m² Årlig leje Månedlig leje
1. sal 399 1.800 718.200 kr. 59.850 kr.
2. sal 404 1.800 727.200 kr. 60.600 kr.
3. sal Udlejet - - -
I alt 803 1.800 1.445.400 kr. 120.450 kr.

Lejemålsoversigt

Lejemål Areal m² Årlig leje kr./m² Årlig leje Månedlig leje
1. sal 399 1.800 718.200 kr. 59.850 kr.
2. sal 404 1.800 727.200 kr. 60.600 kr.
3. sal Udlejet - - -
I alt 803 1.800 1.445.400 kr. 120.450 kr.